ABOUT THE TALONA
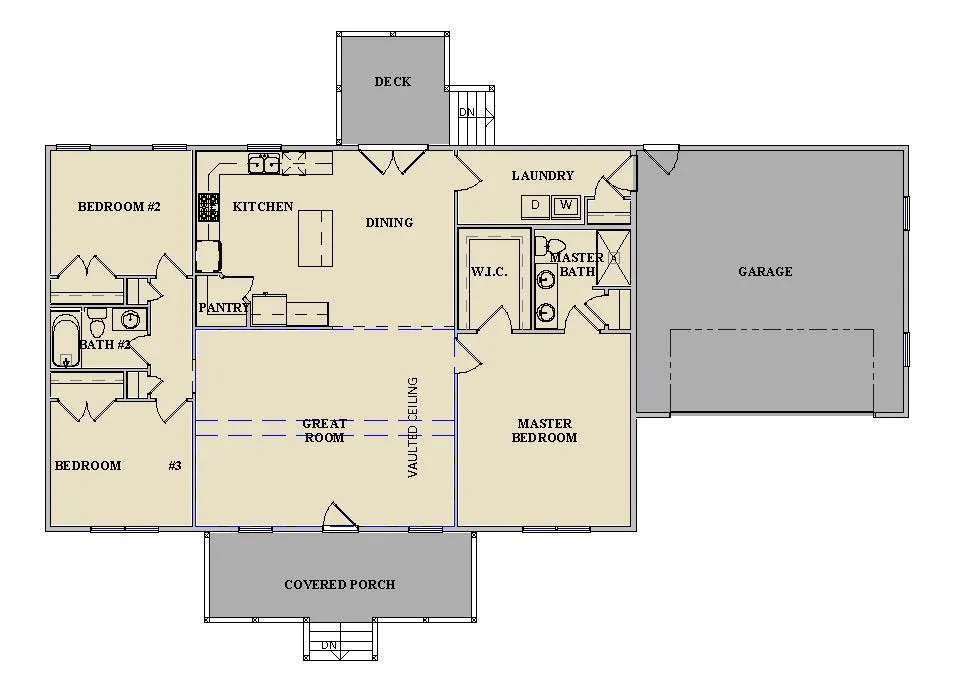
The Talona floorplan offers a perfect combination of space and practicality, with a total of 1768 square feet of first-floor living space. As you step into the home, you're greeted by a spacious great room with a vaulted ceiling, ideal for family gatherings and entertaining. The open-concept kitchen features modern appliances, ample counter space, and a convenient pantry, making it a culinary enthusiast's dream. Adjacent to the kitchen is a cozy dining area, perfect for enjoying meals with family and friends. The master suite offers a luxurious retreat, complete with a walk-in closet and an elegant master bath. Two additional bedrooms and a second full bath provide ample space for family members or guests. A well-placed laundry room adds convenience to your daily routine.
This floorplan also includes a 576-square-foot attached garage, providing plenty of room for vehicles and additional storage. Outdoor living is enhanced by a 192-square-foot covered porch and a 100-square-foot deck, perfect for relaxation or outdoor dining. The Talona is designed to cater to your every need, whether you're hosting a family gathering, seeking a quiet retreat, or enjoying the beauty of the outdoors.

START YOUR DESIGN JOURNEY